Stads wonen op z’n best! Dit verrassend ruime en instapklare appartement combineert modern comfort met een karaktervolle ligging midden in Haarlem. Een unieke kans op een toplocatie, direct beschikbaar.
Op een steenworp afstand van het water en verscholen in de geliefde Burgwalbuurt vind je dit volledig gerenoveerde appartement aan de Spaarnwouderstraat. Hier woon je in alle rust, terwijl het bruisende stadsleven zich letterlijk om de hoek bevindt. De woning maakt deel uit van een kleinschalig project waarin stijl, kwaliteit en authentieke details harmonieus samenkomen.
De omgeving biedt het beste van twee werelden: een charmante, hechte buurt én alle voorzieningen van het historische centrum binnen handbereik. Binnen enkele minuten wandel je naar de Grote Markt, met een rijk aanbod aan horeca, winkels en cultuur. Ook de bereikbaarheid is uitstekend en met de fiets ben je zo in de duinen of op het strand.
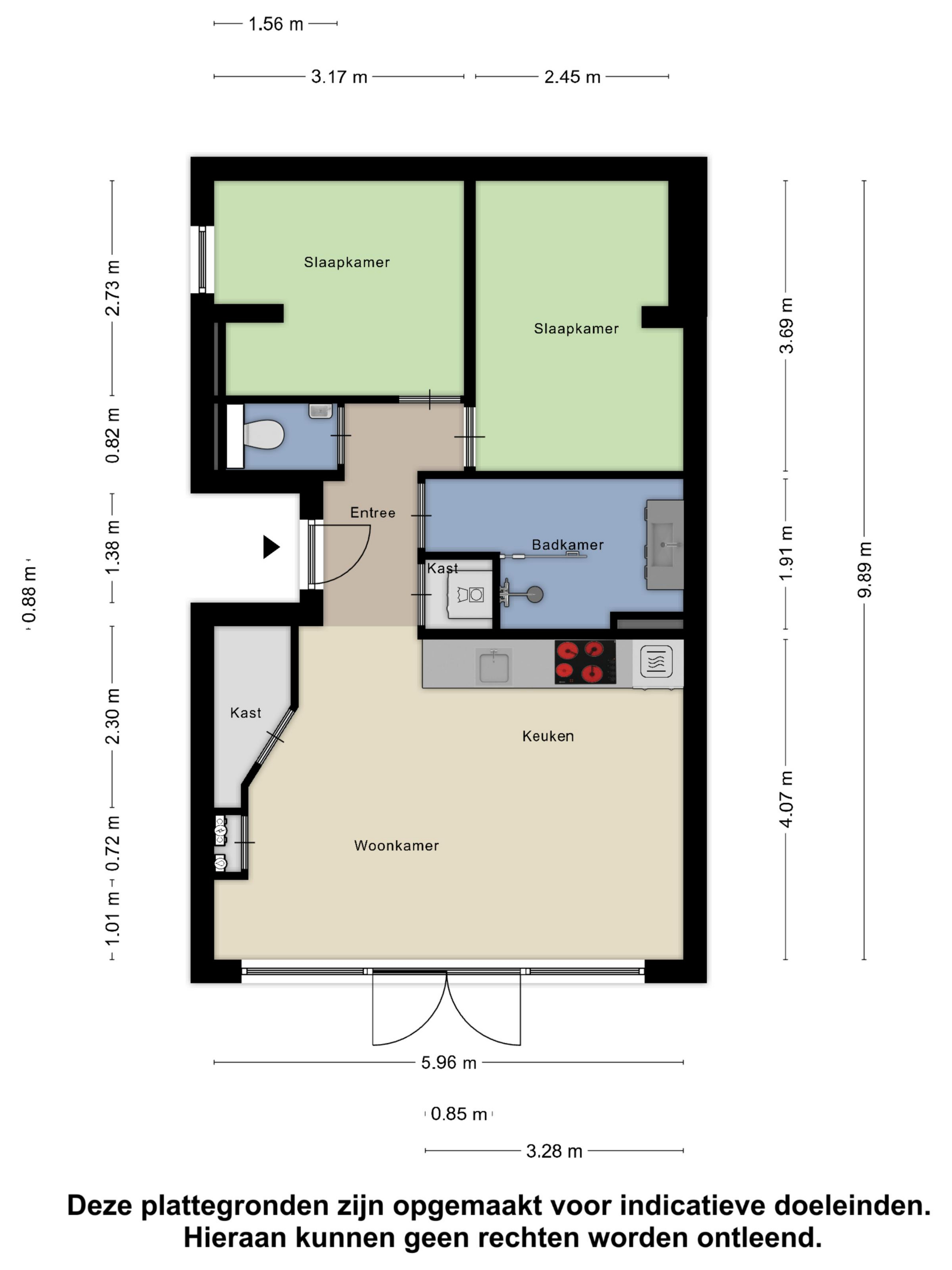
INDELING
Via de entree stap je binnen in een verzorgd en modern afgewerkt appartement op de begane grond. Aan de voorzijde bevindt zich de lichte woonkamer met een luxe open keuken, voorzien van hoogwaardige Bosch inbouwapparatuur. Aan de rustige achterzijde liggen twee goed bemeten slaapkamers. Daarnaast beschikt de woning over een moderne badkamer met stijlvol tegelwerk en hoogwaardig sanitair van Grohe en Duravit, evenals een separaat toilet.
BIJZONDERHEDEN
- Woonoppervlakte circa 56 m²
- Gelegen op de begane grond
- Volledig en hoogwaardig gerenoveerd
- Moderne PVC visgraatvloer door het gehele appartement
- Duurzaam uitgevoerd met vloerverwarming en inductiekookplaat
- Instapklaar en per direct beschikbaar
- Gelegen in een kleinschalig en stijlvol project
- Beschermd stadsgezicht, orde 2 woning
- Geen mogelijkheid tot het aanvragen van een parkeervergunning
Zie jij jezelf hier al wonen? Neem contact met ons op en plan snel een bezichtiging – dit is zo’n plek die je in het echt wilt ervaren!
Na mondelinge overeenstemming worden de afspraken vastgelegd in een NVM-koopovereenkomst. Hierin zal een ouderdomsclausule, een asbestclausule en een niet-zelfbewoningsclausule worden opgenomen. Voor de inhoud en uitleg hiervan kun je contact opnemen met ons kantoor.
Beschikbaarheid
| Huur/Koop: | Te koop |
| Status: | Beschikbaar |
| Vraagprijs: | € 380.000 k.k. |
| Aanvaarding: | In overleg |
Bouw
| Soort woning: | |
| Type woning: | |
| Bouwjaar: | 1936 |
Kenmerken
| Woonoppervlakte: | 56 m2 |
| Inhoud: | 184 m3 |
| Verdiepingen: | 1 |
| Aantal kamers: | 3 |
| Slaapkamers: | 2 |
Woonlagen
| Begane grond: |
|
Buiten
| Tuin: | Geen tuin |
| Parkeren: | Openbaar parkeren, betaald parkeren |
Voorzieningen
| Voorzieningen: | Mechanische ventilatie, tv kabel, glasvezel kabel, natuurlijke ventilatie |
| Verwarming: | Cv ketel |
| Warm water: | Cv ketel |

















