Tegenover het groene Zaanenpark staat deze karaktervolle jaren ’30 gezinswoning waar sfeer, ruimte en uitzicht prachtig samenkomen. Vanuit de woning geniet je van een prachtig vrij uitzicht over het park, waardoor je elke dag uitkijkt op groen en ruimte. Een huis met authentieke details, een zonnige tuin op het westen en een unieke ligging in de geliefde Planetenbuurt.
Aan de Mercuriusstraat 7 in Haarlem stap je binnen in een woning met een warme en uitnodigende sfeer. De elegante paneeldeuren en de karakteristieke granito vloer geven direct dat geliefde jaren ’30 gevoel. De ruime woonkamer biedt volop leefruimte en wordt extra sfeervol door de houtkachel, ideaal voor gezellige avonden. Aan de achterzijde openen de dubbele deuren naar de zonnige achtertuin op het westen, waar je tot in de avond kunt genieten van de zon. De open keuken sluit hier mooi op aan en is ingericht met een spoeleiland met Quooker, een 5-pits gasfornuis met oven, vaatwasser en een afzuigkap, perfect voor kookliefhebbers en lange diners met vrienden en familie.
Daarnaast is er ook aandacht besteed aan duurzaamheid en wooncomfort. De woning is voorzien van spouwmuurisolatie en in de woonkamer is Tonzon vloerisolatie aangebracht, wat zorgt voor een aangenaam binnenklimaat. Vrijwel de gehele woning beschikt over HR++ glas en op het dak liggen 8 zonnepanelen, wat bijdraagt aan lagere energielasten en een duurzamer energieverbruik.
De ligging van deze woning is een absolute troef. Je woont hier in de geliefde Planetenbuurt, een wijk die bekendstaat om haar brede, groene lanen en vriendelijke, kindgerichte karakter.
De buurt heeft een prettige, levendige sfeer en is bijzonder populair bij gezinnen. In de directe omgeving vind je meerdere basisscholen, kinderopvanglocaties en verschillende speelplekken voor kinderen. Voor de dagelijkse boodschappen, een vers broodje of een goede cappuccino kun je terecht bij diverse winkels en gezellige koffietentjes in de buurt, waar buurtbewoners elkaar graag ontmoeten.
Een extra plus: het Zaanenpark ligt letterlijk voor de deur. Dit groene stadspark is een heerlijke plek om te wandelen, sporten of gewoon even tot rust te komen. Voor kinderen is het al helemaal een paradijs dankzij de grote speeltuin waar volop gespeeld kan worden. De brede stoep voor de woning draagt bovendien bij aan het gezellige straatbeeld: een plek waar buren elkaar spreken en kinderen veilig buiten kunnen spelen.
Ook qua bereikbaarheid zit je hier uitstekend. Binnen enkele minuten fiets je naar het historische centrum van Haarlem, het NS-station of richting het strand. Met de auto bereik je bovendien snel de uitvalswegen naar onder andere Amsterdam en Schiphol, waardoor je hier rustig woont met alle belangrijke bestemmingen binnen handbereik.
INDELING
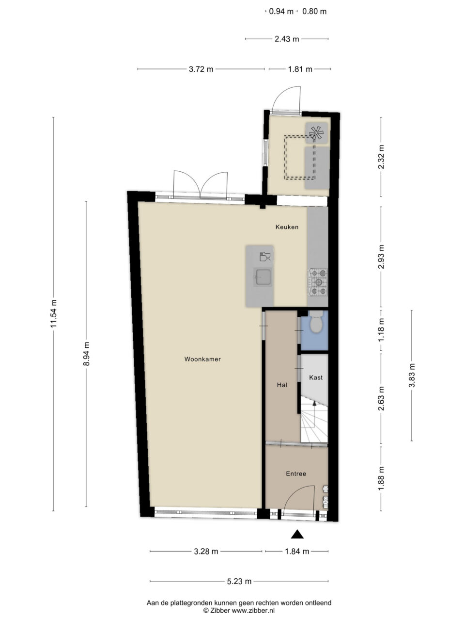
Begane grond
Entree, tochtportaal met de karakteristieke granito vloer en openslaande deuren richting de hal die toegang geeft tot de woonkamer, het toilet en de trapkast. De royale en lichte woonkamer beschikt over een sfeervolle houtkachel en openslaande deuren naar de zonnige achtertuin op het westen. De open keuken is praktisch en stijlvol ingericht met een spoeleiland, een 5-pits gasfornuis met oven, vaatwasser, een afzuigkap en een Quooker.
Eerste verdieping
Overloop met toegang tot twee ruime slaapkamers, de kamer aan de achterkant met inbouwkast en een extra kamer die ideaal is als werk-, hobby- of babykamer. De slaapkamer aan de achterzijde heeft toegang tot het balkon. De slaapkamer aan de voorzijde biedt een prachtig vrij uitzicht over het Zaanenpark. De badkamer is compleet uitgerust met ligbad, douche, wastafel en hangend toilet.
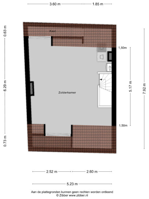
Tweede verdieping
Een veelzijdige verdieping die naar eigen wens kan worden ingericht, bijvoorbeeld als extra slaapkamer, werkruimte of hobbyruimte. Hier bevinden zich tevens de opstelplaats voor de wasmachine, droger en de cv-ketel.
BIJZONDERHEDEN
- Karaktervolle jaren ’30 gezinswoning
- Vrij uitzicht over het Zaanenpark
- Zonnige achtertuin op het westen
- Authentieke details zoals paneeldeuren en granito vloer
- Woonkamer met houtkachel en openslaande deuren naar de tuin
- Open keuken met spoeleiland, Quooker en 5-pits gasfornuis
- Balkon aan de achterzijde
- 8 zonnepanelen
- Spouwmuurisolatie aanwezig
- Tonzon vloerisolatie in de woonkamer
- Vrijwel geheel voorzien van HR++ glas (behalve glas in en naast de voordeur, en de achterdeur is waarschijnlijk HR ++)
- Gelegen in de geliefde en kindvriendelijke Planetenbuurt
- Grote speeltuin in het Zaanenpark direct voor de deur
Zie jij jezelf hier al wonen met uitzicht op het park en een zonnige achtertuin? Kun je niet wachten om deze woning in het echt te bekijken? Reageer op de woning en plan eenvoudig zelf een moment in voor een bezichtiging. We laten je dit fijne huis graag persoonlijk ervaren.
Na mondelinge overeenstemming worden de afspraken vastgelegd in een NVM-koopovereenkomst. Hierin zal een ouderdomsclausule en een asbestclausule worden opgenomen. Voor de inhoud en uitleg hiervan kun je contact opnemen met ons kantoor.
Beschikbaarheid
| Huur/Koop: | Te koop |
| Status: | Verkocht onder voorbehoud |
| Vraagprijs: | € 800.000 k.k. |
| Aanvaarding: | In overleg |
Bouw
| Soort woning: | Eengezinswoning |
| Type woning: | Tussenwoning |
| Ligging: | Aan park, in woonwijk, vrij uitzicht |
| Bouwjaar: | 1933 |
Kenmerken
| Perceeloppervlakte: | 112 m2 |
| Woonoppervlakte: | 125 m2 |
| Inhoud: | 444 m3 |
| Verdiepingen: | 3 |
| Aantal kamers: | 5 |
| Slaapkamers: | 3 |
Woonlagen
| Begane grond: |
|
| Zolder: |
|
| Eerste verdieping: |
|
Buiten
| Tuin: | Achtertuin |
| Hoofdtuin: | Achtertuin |
| Ligging: | West |
| Kwaliteit: | Normaal |
| Parkeren: | Openbaar parkeren |
Voorzieningen
| Voorzieningen: | Tv kabel, rookkanaal, glasvezel kabel, zonnepanelen, natuurlijke ventilatie |
| Verwarming: | Cv ketel |
| Warm water: | Cv ketel |
























































