Monumentaal wonen met een magnifiek vrij uitzicht over water en groen, aan de rand van het bruisende centrum van Haarlem. Dit karaktervolle herenhuis uit 1925 combineert historie, ruimte en comfort op een uitzonderlijke locatie aan de singel.
Achter de fraaie gevel schuilt een sfeervolle woning waarin klassieke details zorgvuldig zijn behouden. Hoge plafonds, paneeldeuren, sierlijsten en authentieke tegels aan de wand in de vestibule geven het huis een elegante, tijdloze uitstraling. De woning is in 2013 grondig gerenoveerd en verkeert in goede staat van onderhoud.
De ligging is zonder meer bijzonder. Aan de voorzijde kijk je vanuit alle etages vrij uit over het kabbelende water en het groen van de singel. Tegelijkertijd bevindt het levendige centrum van Haarlem zich op loopafstand, met winkels, horeca, cultuur en het NS-station binnen handbereik. Parkeren is mogelijk via bewonersvergunning(en). Een ideale combinatie van rust, ruimte en stedelijk comfort.
INDELING
begane grond
Entree via de karakteristieke vestibule met authentieke wandtegels. Hal met modern toilet. Royale woonkamer met hoge plafonds, een fraaie erker en een prachtig vrij uitzicht over het water en de singel aan de voorzijde. Aan de achterzijde geven openslaande deuren toegang tot de zonnige achtertuin. De moderne open keuken is stijlvol uitgevoerd, voorzien van eigentijdse inbouwapparatuur en heeft eveneens directe toegang tot de tuin (oost gelegen) met achterom en schuur.
Eerste verdieping
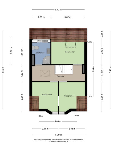
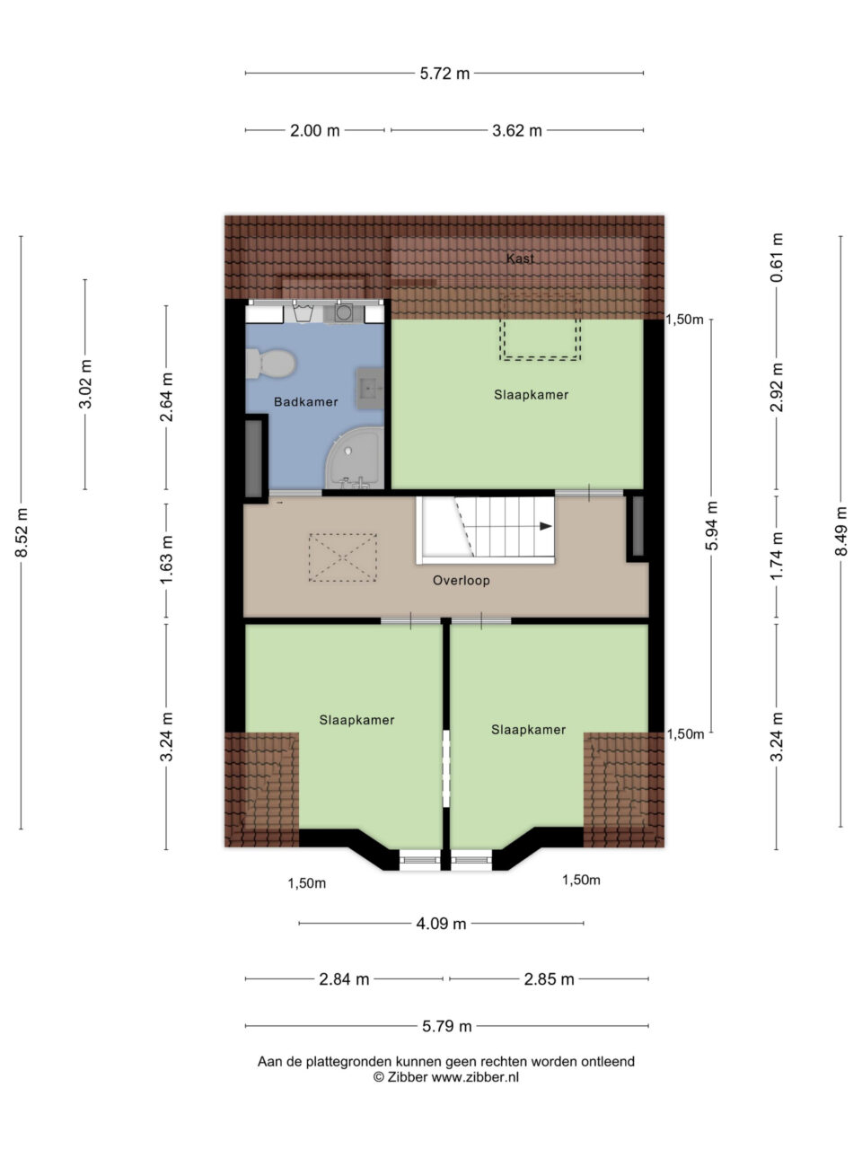
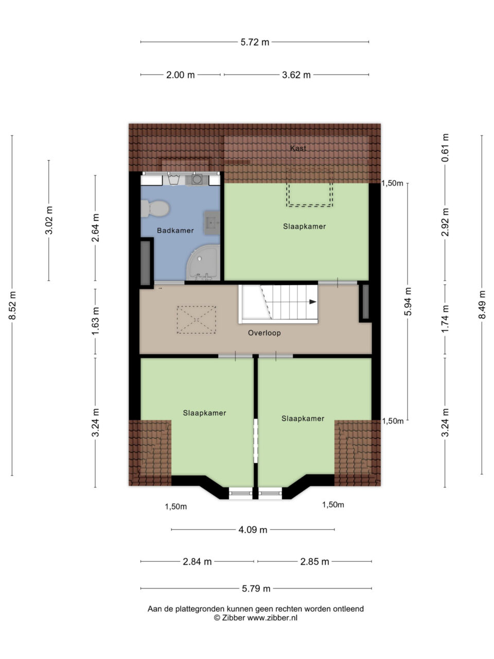
Op deze verdieping bevinden zich twee ruime slaapkamers en een derde, kleinere slaapkamer. De moderne badkamer is verzorgd en tijdloos uitgevoerd en beschikt over een inloopdouche, vloerverwarming, hangend toilet en een groot wastafelmeubel met dubbele laden en royale bergruimte.
Tweede verdieping
Royale en flexibel in te delen verdieping met momenteel twee ruime slaapkamers, eenvoudig te herindelen tot drie slaapkamers. Daarnaast is hier een tweede badkamer aanwezig, voorzien van een douche, wastafel en sanibroyeur. In deze badkamer bevinden zich tevens de aansluitingen voor wasmachine en droger.
Vliering
Ruime vliering, bereikbaar via een vlizotrap en ideaal voor extra bergruimte.
Tuin
De verzorgde achtertuin is gelegen op het oosten en beschikt over een achterom, een prettige plek om in alle rust van de ochtend- en middagzon te genieten.
BIJZONDERHEDEN
- Bouwjaar ca. 1925
- Monumentaal herenhuis
- In 2013 grondig gerenoveerd en verbouwd
- Goede staat van onderhoud
- Hoge plafonds en fraaie originele details
- Magnifiek vrij uitzicht over water en het groen
- Moderne open keuken en twee badkamers
- Parkeren met bewonersvergunning(en)
- Voor- en achtertuin, schuur en achterom
Een bijzonder herenhuis op een zeldzame locatie, waar uitzicht, sfeer en ruimte op een natuurlijke manier samenkomen. Een woning die je niet alleen ziet, maar vooral moet ervaren. Reageer op de woning en plan eenvoudig zelf een moment in voor een bezichtiging. We laten je dit fijne huis graag persoonlijk ervaren.
Na mondelinge overeenstemming worden de afspraken vastgelegd in een NVM-koopovereenkomst. Hierin zal een ouderdomsclausule en een asbestclausule worden opgenomen. Voor de inhoud en uitleg hiervan kun je contact opnemen met ons kantoor.
*****
Monumental living with a magnificent, unobstructed view over water and greenery, on the edge of Haarlem’s vibrant city centre. This characterful townhouse from 1925 combines history, space and comfort in an exceptional location along the singel.
Behind the attractive façade lies a charming home in which classic details have been carefully preserved. High ceilings, panelled doors, decorative mouldings and authentic wall tiles in the vestibule give the house an elegant, timeless appearance. The property was thoroughly renovated in 2013 and is in good condition.
The location is truly special. From the front, all floors enjoy a free view over the gently flowing water and the greenery of the singel. At the same time, Haarlem’s lively city centre is within walking distance, with shops, restaurants, culture and the NS railway station close at hand. Parking is possible via resident permit(s). An ideal combination of tranquillity, space and urban comfort.
LAYOUT
Ground floor:
Entrance through the characteristic vestibule with authentic wall tiles. Hall with modern toilet. Spacious living room with high ceilings, an attractive bay window and a beautiful unobstructed view over the water and the singel at the front. At the rear, French doors provide access to the sunny back garden. The modern open-plan kitchen is stylishly designed, equipped with contemporary built-in appliances and also offers direct access to the garden (east-facing) with rear entrance and storage shed.
First floor:
This floor comprises two spacious bedrooms and a third, smaller bedroom. The modern bathroom is neatly and timelessly finished and features a walk-in shower, underfloor heating, wall-hung toilet and a large washbasin unit with double drawers and ample storage space.
Second floor
Spacious and flexibly laid-out floor, currently with two generous bedrooms, easily reconfigured into three bedrooms. In addition, there is a second bathroom with shower, washbasin and sanibroyeur. This bathroom also houses the connections for a washing machine and dryer.
Loft
Spacious loft, accessible via a pull-down ladder and ideal for additional storage.
Garden
The well-maintained back garden is east-facing and features a rear entrance, a pleasant place to enjoy the morning and afternoon sun in peace.
PARTICULARS
- Year of construction approx. 1925
- Monumental townhouse
- Thoroughly renovated and remodelled in 2013
- Good state of maintenance
- High ceilings and beautiful original details
- Magnificent unobstructed view over water and greenery
- Modern open-plan kitchen and two bathrooms
- Parking with resident permit(s)
- Front and back garden, storage shed and rear entrance
A special townhouse in a rare location, where views, atmosphere and space come together naturally. A home you do not just see, but truly have to experience. Respond to the listing and easily schedule a viewing at a time that suits you. We would be happy to show you this lovely home in person.
After verbal agreement, the arrangements will be laid down in an NVM purchase agreement. This agreement will include an age clause and an asbestos clause. For the content and explanation of this, you can contact our office.
Disclaimer: No rights can be derived from this translation.
Beschikbaarheid
| Huur/Koop: | Te koop |
| Status: | Verkocht onder voorbehoud |
| Vraagprijs: | € 975.000 k.k. |
| Aanvaarding: | In overleg |
Bouw
| Soort woning: | Herenhuis |
| Type woning: | Tussenwoning |
| Ligging: | Aan water, in woonwijk, vrij uitzicht |
| Bouwjaar: | 1925 |
Kenmerken
| Perceeloppervlakte: | 125 m2 |
| Woonoppervlakte: | 139 m2 |
| Inhoud: | 530 m3 |
| Verdiepingen: | 4 |
| Aantal kamers: | 7 |
| Slaapkamers: | 6 |
Woonlagen
| Begane grond: |
|
| Vliering: | |
| 1e verdieping: |
|
| 2e verdieping: |
|
Buiten
| Tuin: | Achtertuin, voortuin |
| Hoofdtuin: | Achtertuin |
| Ligging: | Oost |
| Kwaliteit: | Normaal |
| Parkeren: | Betaald parkeren, parkeervergunningen |
| Schuur/berging: | Vrijstaand hout (0 m2) |
Voorzieningen
| Voorzieningen: | Tv kabel, dakraam, glasvezel kabel, natuurlijke ventilatie |
| Verwarming: | Cv ketel |
| Warm water: | Cv ketel |























































