Klipperkade 1 – Ultiem wonen aan open vaarwater in Haarlem.
Wakker worden met kabbelend water aan uw terras, ’s avonds aanmeren aan uw eigen steiger en overdag genieten van zon, ruimte en luxe.
Welkom bij Klipperkade 1: een zo goed als nieuwe, royale halfvrijstaande villa van bijna 200 m², direct gelegen aan open vaarwater – met meerdere zonneterrassen, een privé aanlegsteiger en een sfeer die voelt als permanent vakantie vieren.
Wonen waar anderen recreëren.
Gelegen op het in 2013 gerealiseerde schiereiland Land in Zicht, aan de oevers van het Spaarne, ademt deze woning maritieme charme en moderne luxe. Vanuit uw riante living stapt u via dubbele openslaande deuren zo het vergrote zonneterras op – of direct uw boot in. Binnen enkele minuten vaart u naar de Mooie Nel, de gezellige binnenstad van Haarlem of via de sluizen van Spaarndam richting Amsterdam.
Dit is wonen met vrijheid, binnenkomen is verliefd worden!
Parterre:
Licht, luxe en leefruimte
De royale hal geeft toegang tot een modern toilet. De living is heerlijk licht dankzij de grote raampartijen en vormt samen met de halfopen keuken een prachtige leefruimte.
De keuken is uitgevoerd in een tijdloze hoekopstelling met hardstenen werkblad, complete inbouwapparatuur én een Quooker – praktisch én stijlvol.
Buiten wacht het absolute paradepaardje: Een fors vergroot zonneterras op het zuiden, een drijvend waterterras, een eigen aanlegsteiger en elektrisch bedienbare zonwering en wind-/zonneschermen. Tevens is er een elektrisch bedienbare bootlift aanwezig. Hier geniet u van ochtend- én middagzon, privacy en uitzicht over het water.
De inpandige, garage met elektrische deur maakt het comfort compleet. Uiteraard beschikt de woning ook over een privé parkeerplaats op eigen terrein.
Verdiepingen met mogelijkheden:
Eerste verdieping
In plaats van vier standaardkamers is hier gekozen voor twee royale L-vormige zit-/slaapkamers – een heerlijke luxe indeling met ruimte en flexibiliteit. Beide kamers beschikken over een balkon.
De badkamer is modern en neutraal uitgevoerd met vloerverwarming, ligbad, ruime inloopdouche, hangtoilet en wastafel. Daarnaast is er een praktische inloopkast/waskamer ten behoeven van de was- en droogmachine.
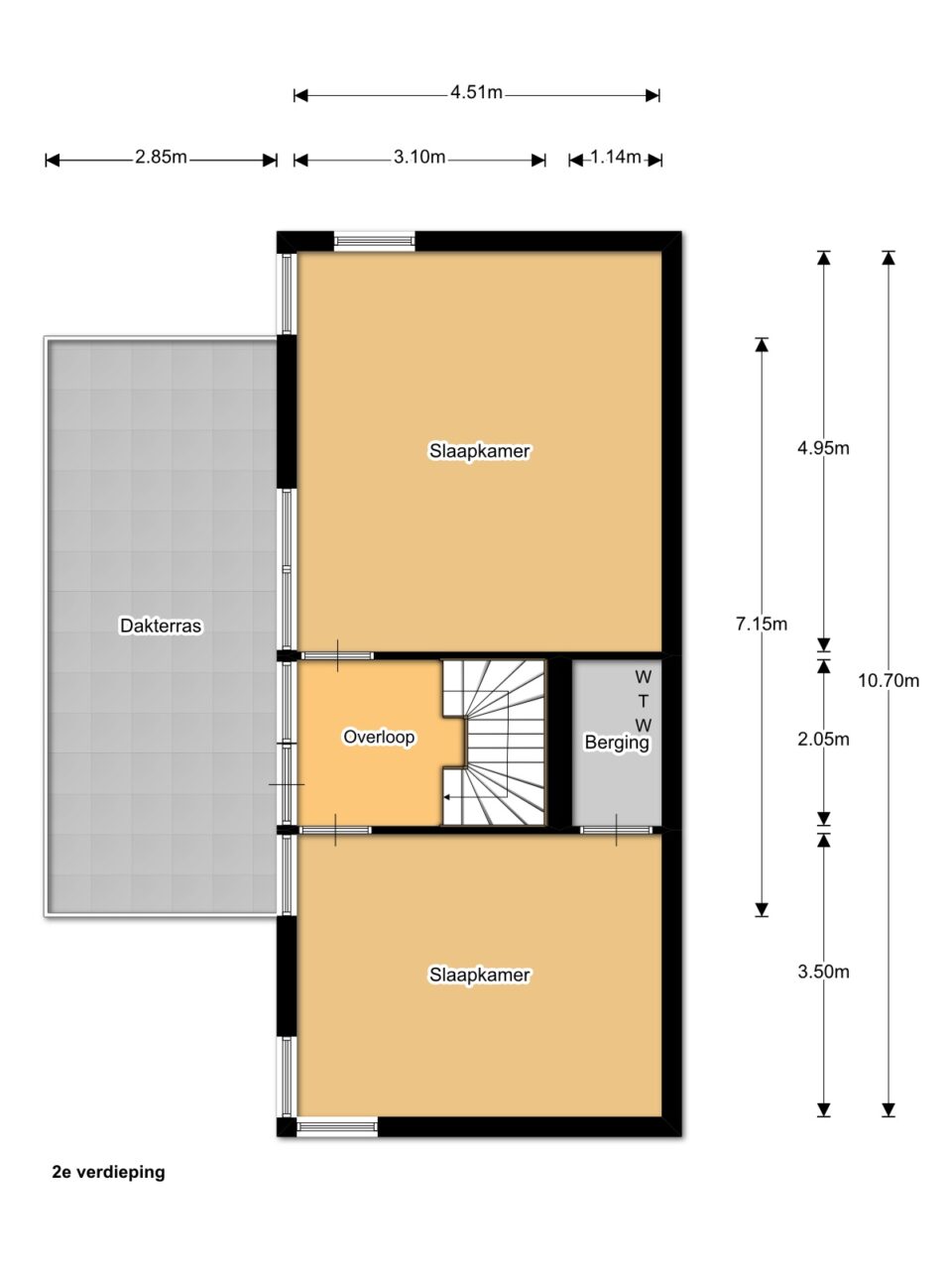
Tweede verdieping
Hier bevinden zich nog eens twee ruime (slaap)kamers. De grootste kamer biedt toegang tot een riant dakterras op het zuiden – de hele dag zon en volop privacy. Een perfecte plek voor lange zomeravonden.
Duurzaam & toekomstbestendig.
Deze woning is niet alleen comfortabel, maar ook energiezuinig en klaar voor de toekomst:
- Energielabel A
- Warmte-terug-win installatie en vochtgestuurde ventilatie
- Volledige vloerverwarming met individuele regeling
- Volledig geïsoleerd
- Woning is voorzien van tien zonnepanelen en een eigen thuisaccu (geen lease of huur) en een eigen laadpaal.
Hier woont u gezond, stil en comfortabel – met lage energielasten.
De ligging: rustig én centraal.
Een autoluwe, kindvriendelijke omgeving met alle voorzieningen binnen handbereik. Binnen 10 minuten fietsen staat u op de Grote Markt of bij het station.
Stranden van Zandvoort en Bloemendaal zijn uitstekend bereikbaar en in recreatiegebied Spaarnwoude kunt u eindeloos wandelen, fietsen of golfen.
Ook de bereikbaarheid is ideaal: slechts enkele minuten naar A200 en A9, 15 minuten naar Amsterdam, 20 minuten naar Schiphol Airport en 15 minuten met de trein naar Amsterdam Centraal.
Samengevat:
- Bouwjaar 2013
- 192 m² woonoppervlak
- 44 m² buitenruimte
- 139 m² eigen grond
- Inpandige garage
- Privé parkeerplaats
- Zuidgerichte terrassen
Klipperkade 1 is geen huis, maar een beleving. Een zeldzame combinatie van water, ruimte, luxe en locatie. Wanneer komt u aanmeren?
Na mondelinge overeenstemming worden de afspraken vastgelegd in een NVM-koopovereenkomst. Hierin zal een ouderdomsclausule en een asbestclausule worden opgenomen.
Beschikbaarheid
| Huur/Koop: | Te koop |
| Status: | Beschikbaar |
| Vraagprijs: | € 1.050.000 k.k. |
| Aanvaarding: | In overleg |
Bouw
| Soort woning: | Eengezinswoning |
| Type woning: | Hoekwoning |
| Ligging: | Aan water, aan rustige weg, vrij uitzicht, aan vaarwater |
| Bouwjaar: | 2013 |
Kenmerken
| Perceeloppervlakte: | 139 m2 |
| Woonoppervlakte: | 192 m2 |
| Inhoud: | 721 m3 |
| Verdiepingen: | 3 |
| Aantal kamers: | 5 |
| Slaapkamers: | 4 |
Woonlagen
| Parterre: |
|
| Eerste etage: |
|
| Tweede etage: |
|
Buiten
| Tuin: | Achtertuin |
| Hoofdtuin: | Achtertuin |
| Ligging: | Zuid |
| Kwaliteit: | Fraai aangelegd |
| Garage: | Inpandig |
| Garage voorzieningen: | Verwarming, elektra, elektrische deur |
| Parkeren: | Openbaar parkeren |
| Schuur/berging: | Inpandig (44 m2) |
Voorzieningen
| Voorzieningen: | Mechanische ventilatie, tv kabel, buitenzonwering, rookkanaal |
| Verwarming: | Cv ketel, gashaard |
| Warm water: | Cv ketel |














































