Stijlvol verbouwd jaren ’30 familiehuis met veel licht en zonnige tuin – op toplocatie in de Haarlemse Bomenbuurt
In een van de meest geliefde straten van de Haarlemse Bomenbuurt staat deze verrassend ruime en smaakvol verbouwde eengezinswoning. Iepenstraat 17 combineert het karakter van een jaren ’30 huis met het comfort en de luxe van nu. Een heerlijk licht huis met vijf slaapkamers, een zonnige tuin op het westen en een hoogwaardige afwerking – ideaal voor wie ruim wil wonen op een rustige, maar zeer centrale plek.
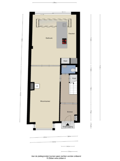
Wonen met ruimte en licht
De begane grond is in 2023 grondig en met veel oog voor kwaliteit verbouwd. De uitbouw is volledig vernieuwd, geïsoleerd en verduurzaamd met onder andere een prachtige, slank gedetailleerde aluminium Pure View schuifpui van Tudor. Dankzij het minimalistische profiel van de pui stroomt het daglicht rijkelijk naar binnen en heb je een vrijwel onbelemmerd zicht op de tuin.
De woonkamer en woonkeuken worden van elkaar gescheiden door stijlvolle eiken ensuite deuren, die zorgen voor een luxe uitstraling en tegelijkertijd flexibiliteit in gebruik. Open voor een royale leefruimte, gesloten voor rust of werken aan de eettafel.
De gehele begane grond is voorzien van een moderne gietvloer met comfortabele vloerverwarming – strak, warm en onderhoudsvriendelijk.
Koken, leven en naar buiten
De woonkeuken vormt het hart van het huis. Via de grote schuifpui loop je zo de zonnige achtertuin in waar je vanaf het vroege voorjaar al tot in de avond van de zon kan genieten.
Vijf volwaardige slaapkamers
Op de verdiepingen bevinden zich in totaal vijf goed bemeten slaapkamers. Ideaal voor een gezin, maar ook perfect voor wie thuis werkt of graag een logeerkamer heeft. De indeling is praktisch en licht, met op elke verdieping een prettige, rustige sfeer.
Duurzaam en instapklaar
De woning is in 2023 hoogwaardig verbouwd en in 2025 voorzien van een nieuwe cv ketel, wat zorgt voor comfortabel en efficiënt wonen met lage onderhoudslasten
De Bomenbuurt: rustig en centraal
De Iepenstraat ligt in de geliefde Bomenbuurt: een rustige, groene wijk met brede straten, veel jonge gezinnen en een prettige dorpse sfeer. Op loopafstand vind je winkels aan de Cronjéstraat, scholen, kinderopvang, sportvoorzieningen en openbaar vervoer. Het centrum van Haarlem is binnen 7 minuten fietsen bereikbaar. Het strand en de duinen zijn binnen 25 minuten ook met de fiets te bereiken.
Kortom:
Iepenstraat 17 is een licht, ruim en hoogwaardig afgewerkt familiehuis op een toplocatie in Haarlem. Een huis dat meteen goed voelt; instapklaar, stijlvol en met verrassend veel ruimte.
Na mondelinge overeenstemming worden de afspraken vastgelegd in een NVM-koopovereenkomst. Hierin zal een ouderdomsclausule en een asbestclausule worden opgenomen.
Beschikbaarheid
| Huur/Koop: | Te koop |
| Status: | Beschikbaar |
| Vraagprijs: | € 945.000 k.k. |
| Aanvaarding: | In overleg |
Bouw
| Soort woning: | Eengezinswoning |
| Type woning: | Tussenwoning |
| Bouwjaar: | 1924 |
Kenmerken
| Perceeloppervlakte: | 136 m2 |
| Woonoppervlakte: | 138 m2 |
| Inhoud: | 487 m3 |
| Verdiepingen: | 3 |
| Aantal kamers: | 7 |
| Slaapkamers: | 5 |
Woonlagen
| Parterre: |
|
| Eerste etage: |
|
| Tweede etage: |
|
Buiten
| Tuin: | Achtertuin, voortuin |
| Hoofdtuin: | Achtertuin |
| Ligging: | West |
| Kwaliteit: | Verzorgd |
| Parkeren: | Openbaar parkeren |
| Schuur/berging: | Vrijstaand hout (10 m2) |
Voorzieningen
| Voorzieningen: | |
| Verwarming: | Cv ketel |
| Warm water: | Cv ketel |























































