Sfeervolle en fijne gezinsHOEKwoning met vrij uitzicht aan de voorzijde en zonnige achtertuin op het westen, welke is gelegen in het gewilde, kindvriendelijke en zeer populaire Ramplaankwartier!
Door het vrije uitzicht geniet je al vroeg van het ochtendzonnetje en de heerlijke zoninval in de woonkamer. Deze hoekwoning heeft een zonnige achtertuin, bereikbaar door een poort aan de achterkant.
De gunstige ligging in een kindvriendelijke omgeving en de ruime opzet van het zeer gewilde Ramplaankwartier maken deze woning ideaal. Op loopafstand is een basisschool, diverse winkels, treinstation Overveen aanwezig en voor een heerlijke wandeling de landgoederen Elswout & Middenduin en Brouwerskolk. De duinen, het strand en het gezellige centrum van Haarlem met vele winkels en terrassen zijn op fietsafstand gelegen. De wijk is goed bereikbaar via de uitvalswegen en openbaar vervoer.
Kortom: Een ideale eengezinswoning met zonnige tuin in het populaire, gewilde en zeer kindvriendelijke Ramplaankwartier!
Indeling
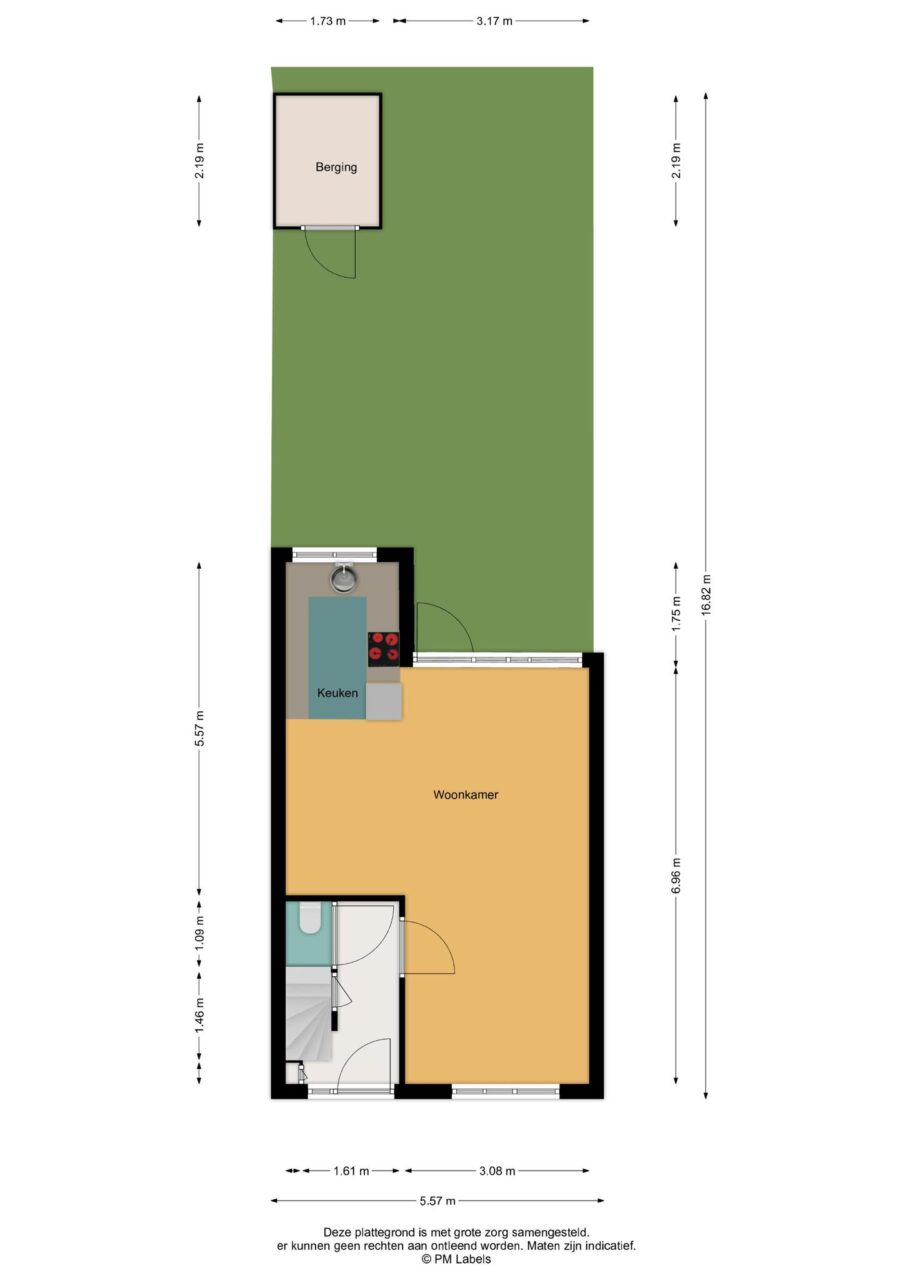
begane grond
Entree/hal, trapkast, toilet, sfeervolle woonkamer met toegang tot de tuin. De moderne keuken bevindt zich aan de achterzijde. De zonnige achtertuin is gelegen op het westen waar je heerlijk kunt genieten van de middag- en avondzon.
1e verdieping
Via de trap bereik je de overloop, twee slaapkamers aan de achterzijde, ruime slaapkamer aan de voorzijde en een badkamer met wastafel en douche.
2e verdieping
volledig bevloerde bergvliering.
Bijzonderheden:
- Sfeervolle gezinsHOEKwoning in één van Haarlems meest gewilde, populaire, groene en kindvriendelijke wijken: het Ramplaankwartier!
- Veel privacy in de zonnige achtertuin gelegen op het westen.
- De woning is gefundeerd “op staal”.
- Vrij zicht aan de voorzijde op een groenstrook.
- Restaurants/terrassen op loopafstand.
- Basisschool op loopafstand.
- Supermarkt en openbaar vervoer (bus en treinstation) in de directe nabijheid.
- Energielabel G.
- Vrij parkeren.
- Op loopafstand van winkels, treinstation Overveen, Kennemerduingebied, scholen, sportverenigingen en landgoed Elswout.
- Het gezellige centrum van Haarlem is op fietsafstand gelegen evenals de stranden van Bloemendaal en Zandvoort.
- Binnen enkele minuten op de uitvalswegen richting Amsterdam, Hoofddorp, Alkmaar, Den Haag en Rotterdam.
- Oplevering in overleg.
Beschikbaarheid
| Huur/Koop: | Te koop |
| Status: | Verkocht |
| Vraagprijs: | € 495.000 k.k. |
| Aanvaarding: | In overleg |
Bouw
| Soort woning: | Eengezinswoning |
| Type woning: | Hoekwoning |
| Ligging: | Aan rustige weg, vrij uitzicht |
| Bouwjaar: | 1934 |
Kenmerken
| Perceeloppervlakte: | 93 m2 |
| Woonoppervlakte: | 69 m2 |
| Inhoud: | 289 m3 |
| Verdiepingen: | 3 |
| Aantal kamers: | 4 |
| Slaapkamers: | 3 |
Woonlagen
| Begane grond: |
|
| 1e etage: |
|
| Zolder: |
Buiten
| Tuin: | Achtertuin |
| Hoofdtuin: | Achtertuin |
| Oppervlakte: | 50 m2 |
| Ligging: | West |
| Kwaliteit: | Normaal |
| Parkeren: | Openbaar parkeren |
| Schuur/berging: | Vrijstaand hout (4 m2) |
Voorzieningen
| Voorzieningen: | Tv kabel, rookkanaal, natuurlijke ventilatie |
| Verwarming: | Cv ketel |
| Warm water: | Cv ketel |

































