Wonen in Sinnevelt met vrij uitzicht en twee balkons.
Op zoek naar een lichte plek met veel ruimte, groen om de hoek en alles binnen handbereik? Dan kan dit verrassend ruime tweekamer appartement (voorheen 3 kamer) in Sinnevelt wel eens precies zijn wat je zoekt. Het ligt op de tweede woonlaag, heeft een woonoppervlakte van ruim 64 m2 en doordat het om een hoekwoning gaat, kijk je prachtig weg. Je hebt hier zelfs een enorme berging beneden, ideaal voor fietsers en verzamelaars.
Het is een rustige wijk waar je makkelijk je auto kwijt kunt, helemaal zonder parkeervergunning. Dat maakt thuiskomen net even relaxter.
Perfect gelegen voor dagelijkse boodschappen en uitstapjes. Met de fiets ben je zo in het centrum van Haarlem en alle winkels voor de dagelijkse boodschappen zitten letterlijk om de hoek. De bushalte ligt op loopafstand, dus naar station Haarlem ben je binnen tien minuten onderweg. Moet je naar Amsterdam? De Randweg ligt direct bij de wijk, waardoor je binnen een kwartier de stad uitrijdt. En voor de nodige ontspanning is het Schoterbos dichtbij, fijn om even een rondje te wandelen of te sporten.
INDELING
Via de buitentrap stap je het afgesloten complex binnen. Beneden vind je de royale privé berging, die door de huidige bewoners als hobby ruimte wordt gebruikt en een gezamenlijke fietsenstalling. De trap brengt je naar het appartement op de tweede woonlaag.
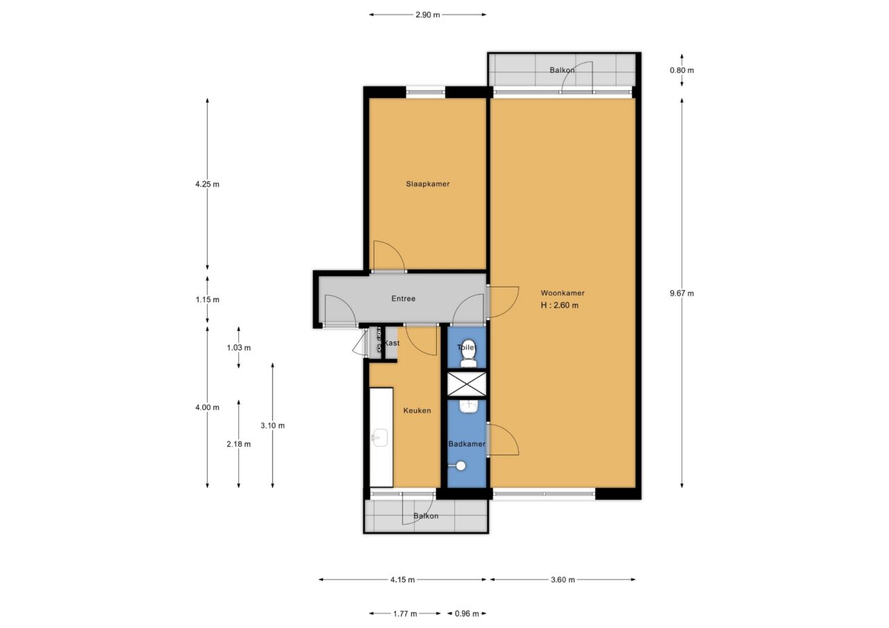
Binnenkomend kom je in de centrale hal. De woonkamer is meteen een fijne verrassing, heerlijk licht en met toegang tot het balkon op het zuiden, waar je van de zon en het vrije groene uitzicht kunt genieten. De slaapkamer is ruim en comfortabel. De keuken heeft een eigen balkon op het noorden, perfect voor een kop koffie in de ochtendzon. Verder is er een badkamer met douche en wastafelmeubel en een apart toilet in de hal.
Je hebt de luxe van twee balkons, eentje op het zuiden en eentje op het noorden. Daarnaast kun je gebruikmaken van de grote gezamenlijke tuin aan de achterzijde, ideaal voor wie houdt van groen.
BIJZONDERHEDEN
- Woonoppervlakte circa 64 m²
- Servicekosten circa 165,54 euro per maand
- Energielabel D
- Twee balkons, ochtendzon en middag/avond zon
- Grote eigen berging en gemeenschappelijke fietsenstalling
- Kunststof kozijnen en dubbel glas
- Gratis parkeren voor de deur
- Centrale ligging ten opzichte van winkels, OV, Haarlem centrum en uitvalswegen
- Oplevering in overleg
Wil je dit ruime en lichte appartement in het echt ervaren? Laat het gerust weten, we plannen graag een bezichtiging voor je.
Na mondelinge overeenstemming worden de afspraken vastgelegd in een NVM-koopovereenkomst. Hierin zal een ouderdomsclausule en een asbestclausule worden opgenomen.
*****
Living in Sinnevelt with unobstructed views and two balconies.
Looking for a bright home with plenty of space, greenery just around the corner and all amenities within easy reach? This surprisingly spacious two room apartment, formerly three rooms, in Sinnevelt could be exactly what you are looking for. It is located on the second floor, has a living area of just over 64 square metres and, as it is a corner apartment, offers lovely open views. On the ground floor you also have a very large private storage room, ideal for cyclists and collectors.
The neighbourhood is quiet and parking is easy, without the need for a parking permit. That makes coming home just that little bit more relaxed.
Ideally located for daily shopping and outings. By bike you can reach Haarlem city centre in no time and shops for everyday groceries are literally around the corner. The bus stop is within walking distance, so you can reach Haarlem Central Station within ten minutes. Travelling to Amsterdam? The ring road is right next to the neighbourhood, allowing you to leave the city within fifteen minutes. For relaxation and outdoor activities, the Schoterbos is nearby, perfect for a walk or a workout.
LAYOUT
Via the external staircase you enter the secured apartment complex. On the ground floor you will find the generous private storage room, currently used by the owners as a hobby space, as well as a communal bicycle storage area. The staircase leads you up to the apartment on the second floor.
Upon entering, you arrive in the central hallway. The living room is an immediate and pleasant surprise, wonderfully light and with access to the south facing balcony, where you can enjoy the sun and the open green view. The bedroom is spacious and comfortable. The kitchen has its own north facing balcony, perfect for a cup of coffee in the morning sun.
There is also a bathroom with shower and washbasin unit, and a separate toilet located in the hallway.
You enjoy the luxury of two balconies, one facing south and one facing north. In addition, you can make use of the large communal garden at the rear, ideal for those who enjoy greenery.
DETAILS
- Living area approximately 64 square metres.
- Service charges approximately 165.54 euros per month.
- Energy label D.
- Two balconies with morning sun and afternoon and evening sun.
- Large private storage room and communal bicycle storage.
- Plastic window frames with double glazing.
- Free parking directly in front of the building.
- Central location close to shops, public transport, Haarlem city centre and main roads.
- Transfer date in consultation.
Would you like to experience this spacious and light apartment in person? Feel free to let us know, we would be happy to schedule a viewing for you.
After verbal agreement, the arrangements will be recorded in an NVM purchase agreement. This agreement will include an age clause and an asbestos clause.
Disclaimer: No rights can be derived from this translation.
Beschikbaarheid
| Huur/Koop: | Te koop |
| Status: | Beschikbaar |
| Vraagprijs: | € 330.000 k.k. |
| Aanvaarding: | In overleg |
Bouw
| Soort woning: | |
| Type woning: | |
| Ligging: | Aan rustige weg, beschutte ligging |
| Bouwjaar: | 1961 |
Kenmerken
| Woonoppervlakte: | 64 m2 |
| Inhoud: | 210 m3 |
| Verdiepingen: | 1 |
| Aantal kamers: | 2 |
| Slaapkamers: | 1 |
Woonlagen
| Beganegrond of flat: |
|
Buiten
| Tuin: | Geen tuin |
| Parkeren: | Openbaar parkeren |
| Schuur/berging: | Inpandig (5 m2) |
Voorzieningen
| Voorzieningen: | Tv kabel, natuurlijke ventilatie |
| Verwarming: | Blokverwarming |
| Warm water: | Cv ketel |







































